Tay nâng Hafele 372.33.631 là phụ kiện nâng cánh tủ cao cấp, được phát triển nhằm tối ưu sự tiện nghi trong không gian bếp hiện đại. Cơ cấu vận hành chính xác giúp cánh tủ đóng – mở nhẹ nhàng, ổn định, kết hợp hệ thống giảm chấn hiệu quả để hạn chế tiếng ồn và va chạm, đồng thời kéo dài tuổi thọ cho cánh tủ theo thời gian.
Đặc điểm nổi bật
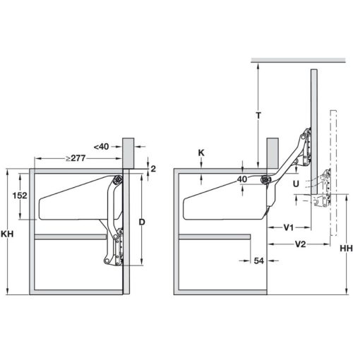
- Thiết kế gọn gàng, tính linh hoạt cao: Tương thích với cánh tủ đơn bằng gỗ, kính hoặc khung nhôm, mang lại diện mạo hiện đại, đồng bộ và sang trọng cho không gian bếp.
- Chuyển động mượt mà, an toàn: Cánh tủ được nâng lên êm ái, giữ chắc ở nhiều góc mở; cơ chế giảm chấn giúp thao tác nhẹ tay, hạn chế rung lắc và tiếng ồn khi sử dụng.
- Thi công lắp đặt thuận tiện: Trang bị chốt và vít Euro lắp sẵn, hệ thống cố định nhanh cho mặt trước và thanh ngang, cùng khả năng chỉnh lệch tâm mặt cánh, giúp quá trình lắp đặt nhanh chóng và chính xác.
- Khả năng điều chỉnh linh hoạt: Cho phép hiệu chỉnh chiều cao ±1,5 mm, độ lệch cạnh ±1,5 mm, góc nghiêng ±1,5° và lực nâng, phù hợp với nhiều kích thước và trọng lượng cánh khác nhau.
- Phạm vi ứng dụng rộng: Phù hợp cho các tủ có mặt trước phía trên, đặc biệt là cánh tủ mở một phần, mang lại sự ổn định, tiện nghi và thẩm mỹ cao trong quá trình sử dụng.
- Vật liệu cao cấp, hoàn thiện tinh xảo: Cấu tạo từ nhựa kỹ thuật kết hợp thép bền chắc, bề mặt mạ niken tinh tế; sử dụng tốt cho cánh gỗ, kính hoặc khung nhôm, đảm bảo độ bền và tính đồng bộ nội thất.











Đánh giá
Chưa có đánh giá nào.