Tay nâng Hafele 372.33.611 là phụ kiện hỗ trợ nâng cánh tủ được phát triển dành cho các hệ tủ hiện đại, giúp thao tác đóng – mở trở nên nhẹ nhàng, êm ái và ổn định. Nhờ kết cấu chế tạo chính xác cùng cơ chế giảm chấn tích hợp, sản phẩm hạn chế tối đa va đập và tiếng ồn, đồng thời góp phần kéo dài tuổi thọ cho cánh tủ trong quá trình sử dụng lâu dài.
Đặc điểm nổi bật
- Kiểu dáng gọn gàng, tính thẩm mỹ cao: Phù hợp với cánh tủ liền một tấm làm từ gỗ, kính hoặc khung nhôm, mang lại diện mạo hiện đại, đồng bộ cho nhiều không gian nội thất khác nhau.
- Chuyển động ổn định, thao tác nhẹ tay: Cánh tủ được nâng lên êm ái, có khả năng giữ chắc ở nhiều vị trí mở; cơ chế vận hành mượt mà giúp đóng – mở nhẹ nhàng, không gây tiếng ồn khó chịu.
- Thi công nhanh, dễ căn chỉnh: Trang bị sẵn chốt định vị và vít Euro, kết hợp hệ thống cố định nhanh cho mặt trước và thanh ngang; cam lệch tâm cho phép điều chỉnh mặt cánh linh hoạt, tiết kiệm thời gian lắp đặt.
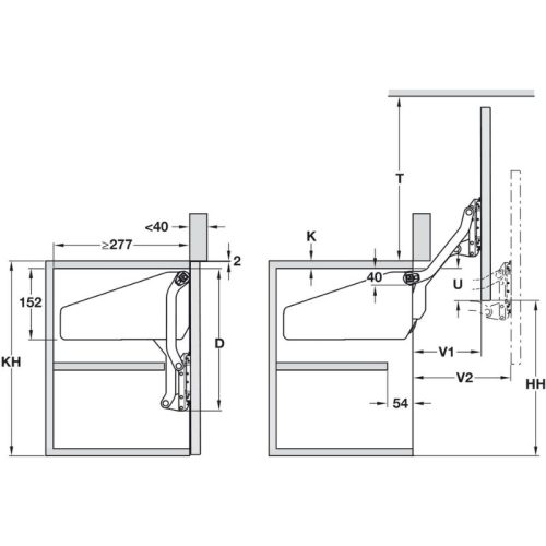
- Khả năng điều chỉnh chính xác: Hỗ trợ hiệu chỉnh chiều cao ±1,5 mm, cạnh ±1,5 mm và góc nghiêng ±1,5°, đáp ứng tốt các yêu cầu kỹ thuật của nhiều kiểu tủ khác nhau.
- Ứng dụng linh hoạt: Thích hợp cho tủ bếp, tủ phòng khách, tủ trưng bày hoặc các hệ tủ treo cao cấp, đảm bảo sự tiện nghi và ổn định khi sử dụng.
- Độ bền cao, hoàn thiện sang trọng: Cơ cấu từ nhựa kỹ thuật và thép chắc chắn, bề mặt mạ niken tinh tế, đồng bộ với các phụ kiện nội thất khác và duy trì độ bền theo thời gian.











Đánh giá
Chưa có đánh giá nào.